DL Logistics Entrance
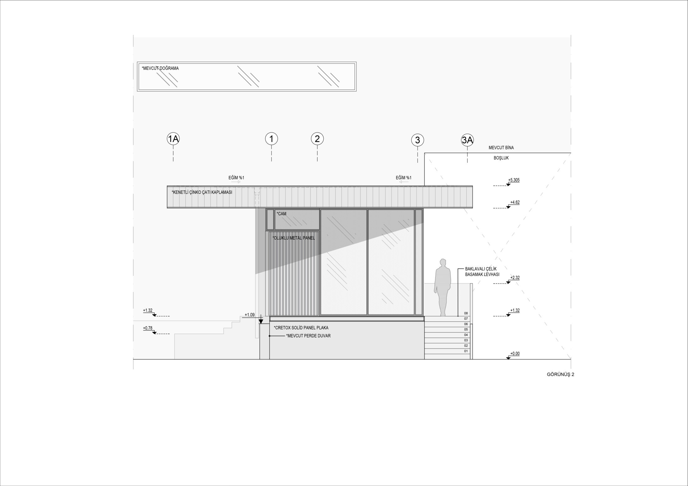
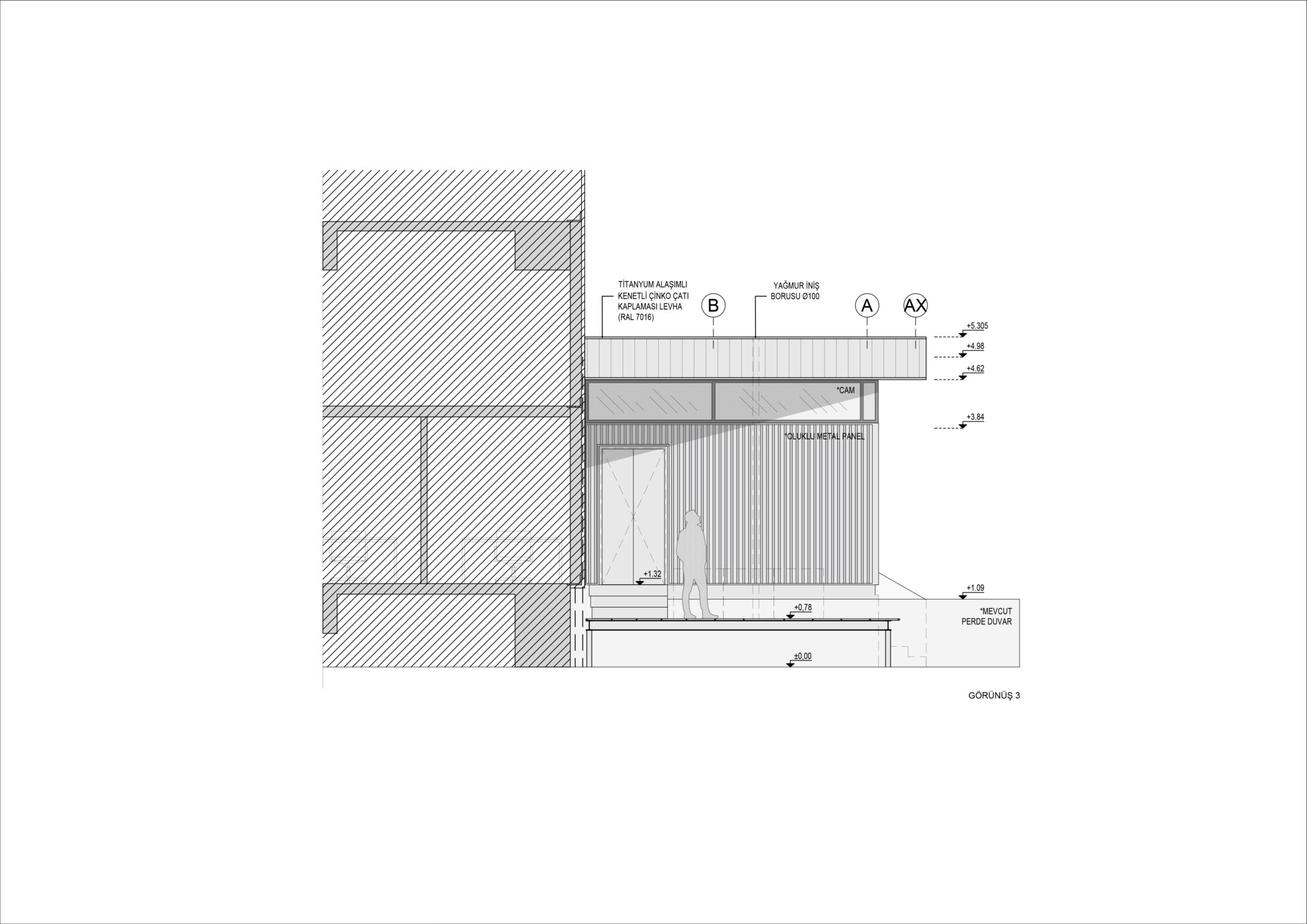
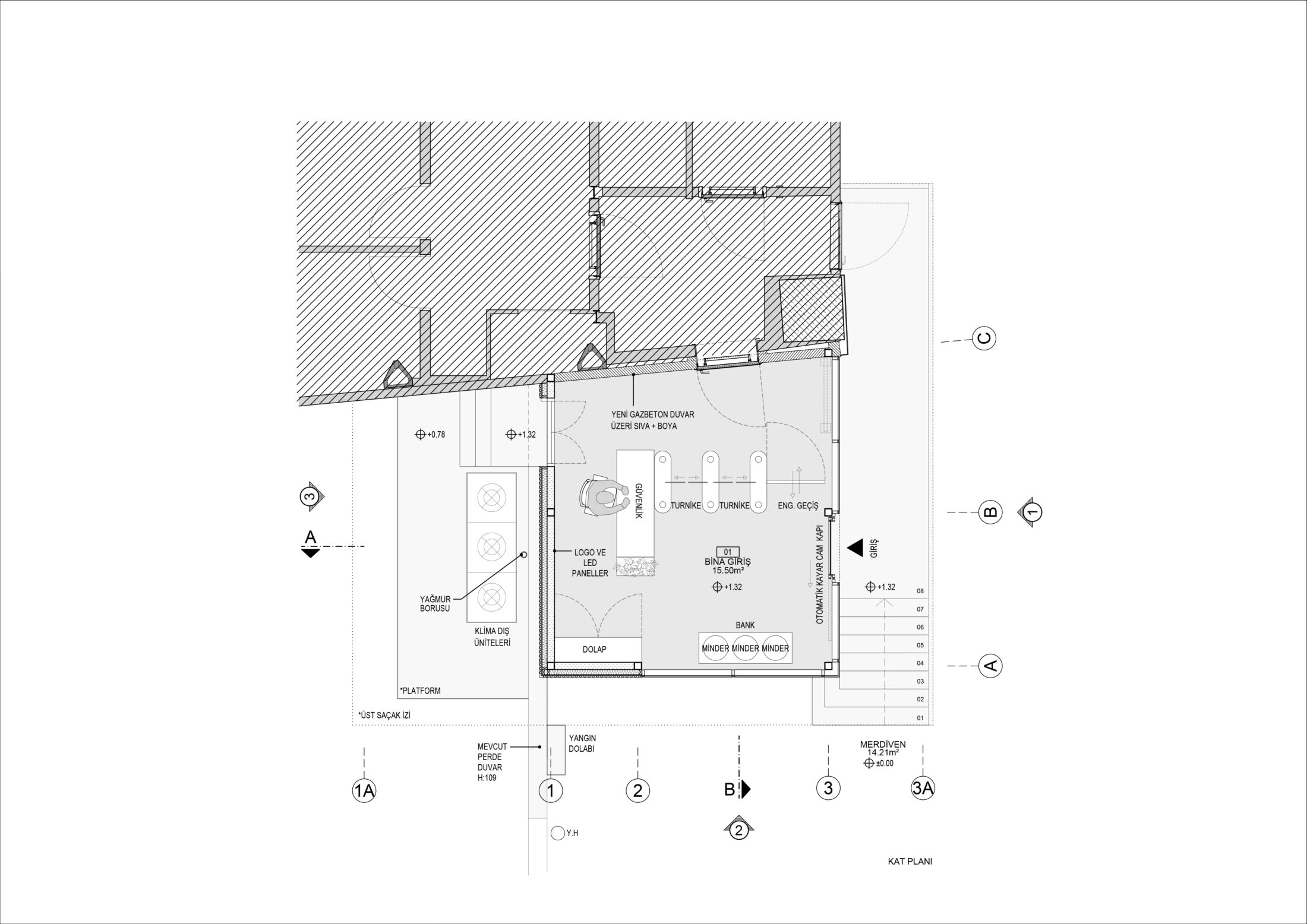
In the factory building of a logistics company, an entrance addition was designed to align with the existing architectural character of the facility. Considering the company’s expanding needs, the entry scenario was re-evaluated.
A durable material palette with clean lines was proposed to reflect the industrial character of the factory and the brand’s corporate colors. Considering the company’s expanding needs, we re-evaluated the entry scenario by assessing the flows of different user types.
The resulting entrance forms a clear and understated threshold that reinforces the operational identity of the factory.
This project was developed in collaboration with architect Aysegul Balkan.








