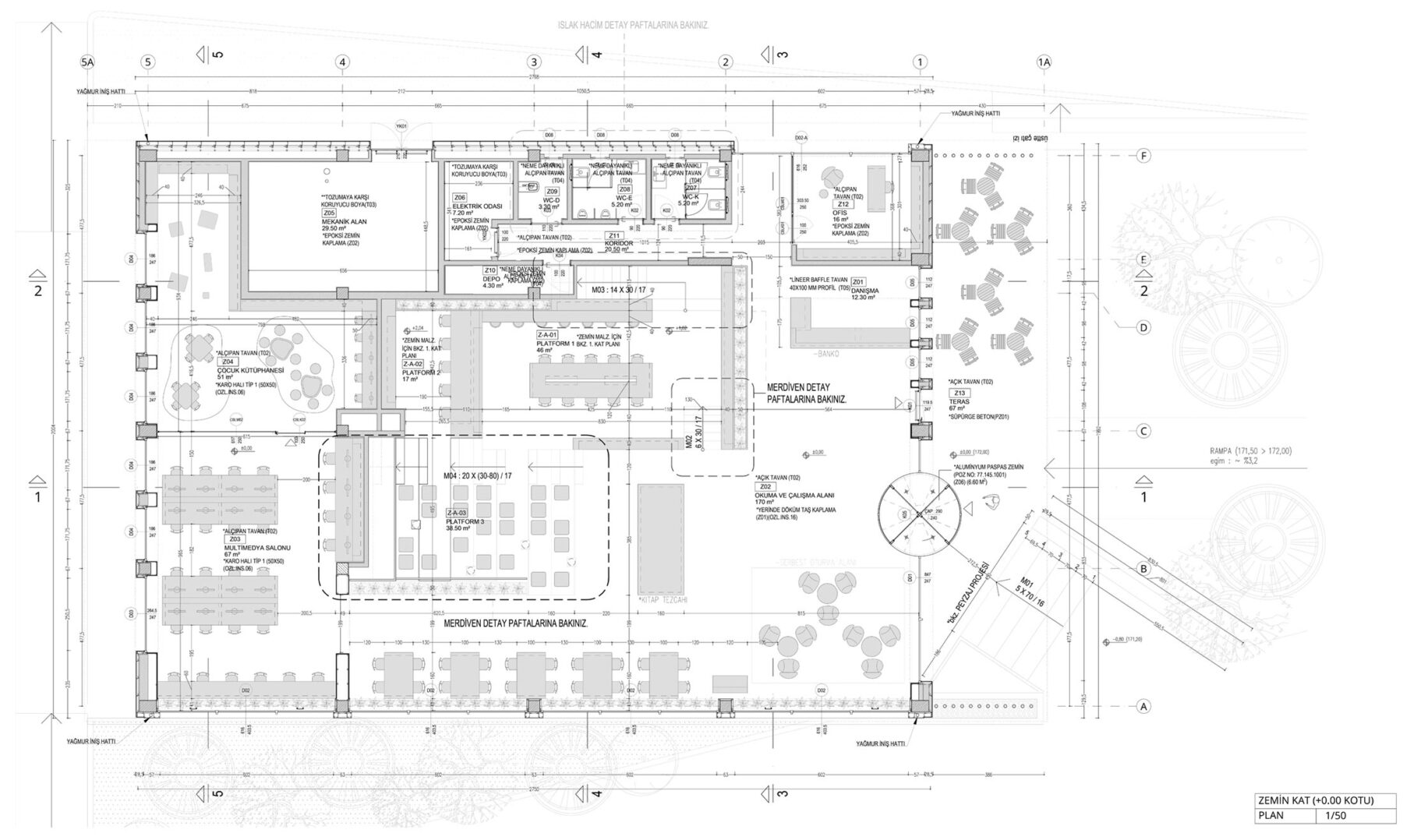
Çerkezköy Public Library
Designed by KAAT Architects, Büro is commissioned to deliver the construction documents, manage the coordination of the other teams, structural, mechanical, electrical, BoQ, management of the material providers, and deliverance of the system details. Within two months, by detailed work philosophy we undertook the task and submitted the documents to the project office.
















