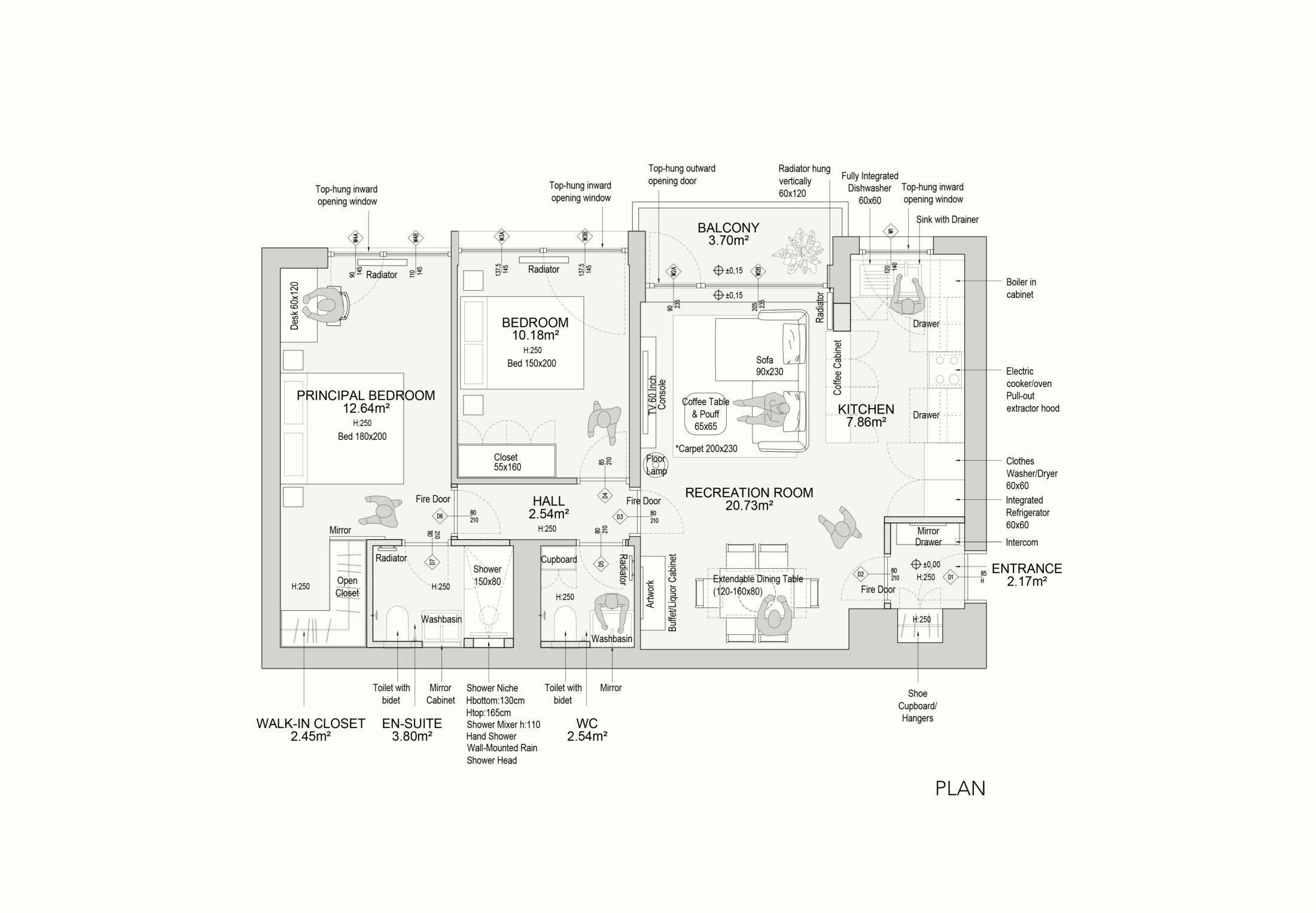
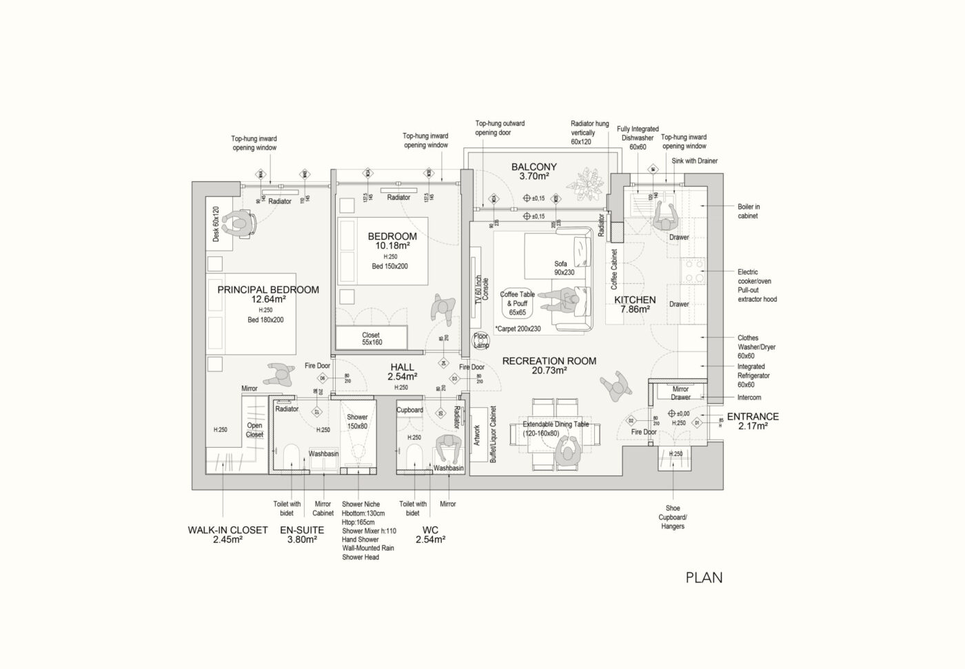
London Hillcrest House
Located in a leafy residential area of London, the Hillcrest Apartment renovation explores a calm and tactile interior language built on warm materials and subtle color accents.
The project reimagines a compact apartment through a series of carefully composed spaces where natural light, soft textures, and crafted surfaces define the atmosphere. A palette of oak flooring, marble countertops, and muted cabinetry establishes a neutral base, while deeper tones such as bordeaux velvet and blue ceramic tiles introduce moments of character throughout the apartment.
Custom furniture elements and carefully selected lighting pieces create a quiet dialogue between contemporary design and vintage references. In the bedrooms, velvet headboards and brass reading lights contribute to a warm, hotel-like intimacy, while the living area opens toward green views, bringing the surrounding landscape into the interior.
The result is a refined yet relaxed urban home where material richness and spatial clarity coexist.












