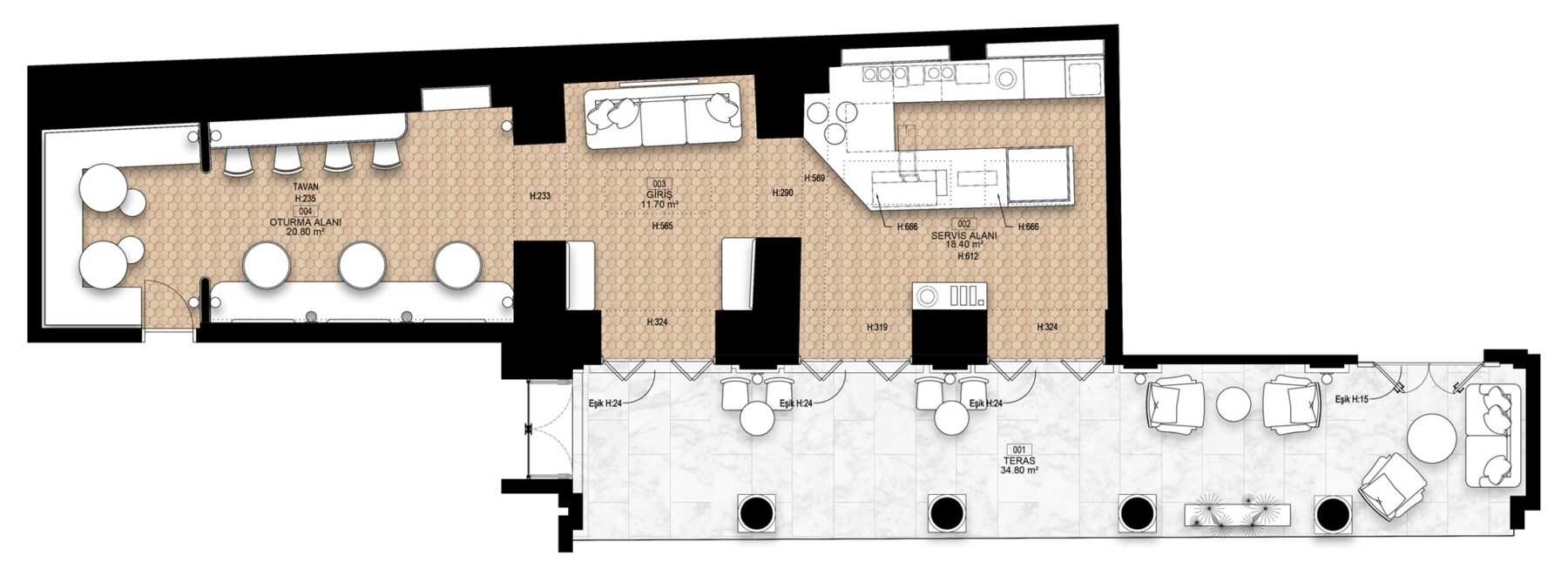
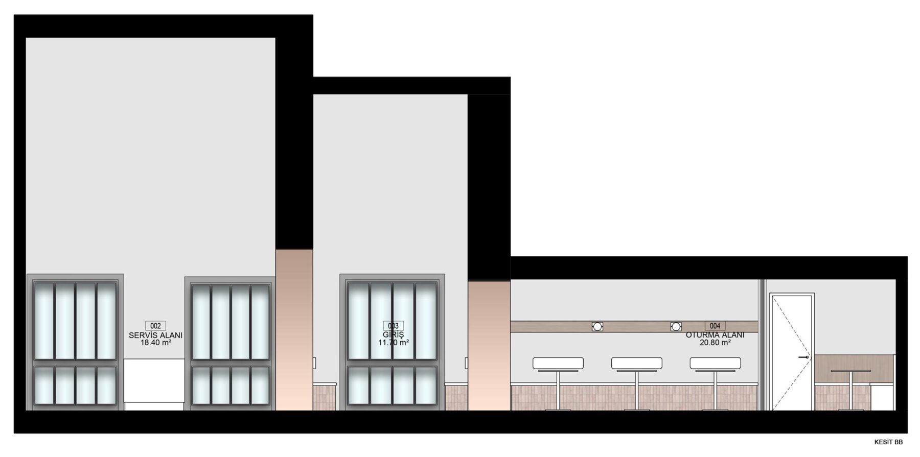
Istanbul Cinema Museum Offices, Cafe & Sales Area
Located in the heart of Istiklal Street, a favorite spot of Istanbulians and tourists for being the main axis of the historical shopping route, also known as the famous Atlas Passage, Büro was commissioned to design and build for the administrative offices, cafe and sales area of the Istanbul Cinema Museum. Due to the hand-drawn murals and patina on walls and ceilings, the spaces were designed in order not to damage any historical surfaces. Inspired by the common usage of Italian palazzos and passages today, modern furniture has been interpreted and adapted, allowing office spaces to host Daily meetings. Antiqued finishes and brass profiles for carpentry details, as well as microcement floors with patina have been implemented to allow the new and old balance for the whole design.





































