Beni’s Deli
BENI’s DELI is a compact deli-style eatery in Bairro Alto, Lisbon, designed for the everyday rhythm of the city. The project pairs the practicality of a classic European deli with the warm, relaxed character that defines Lisbon’s neighbourhood cafés.
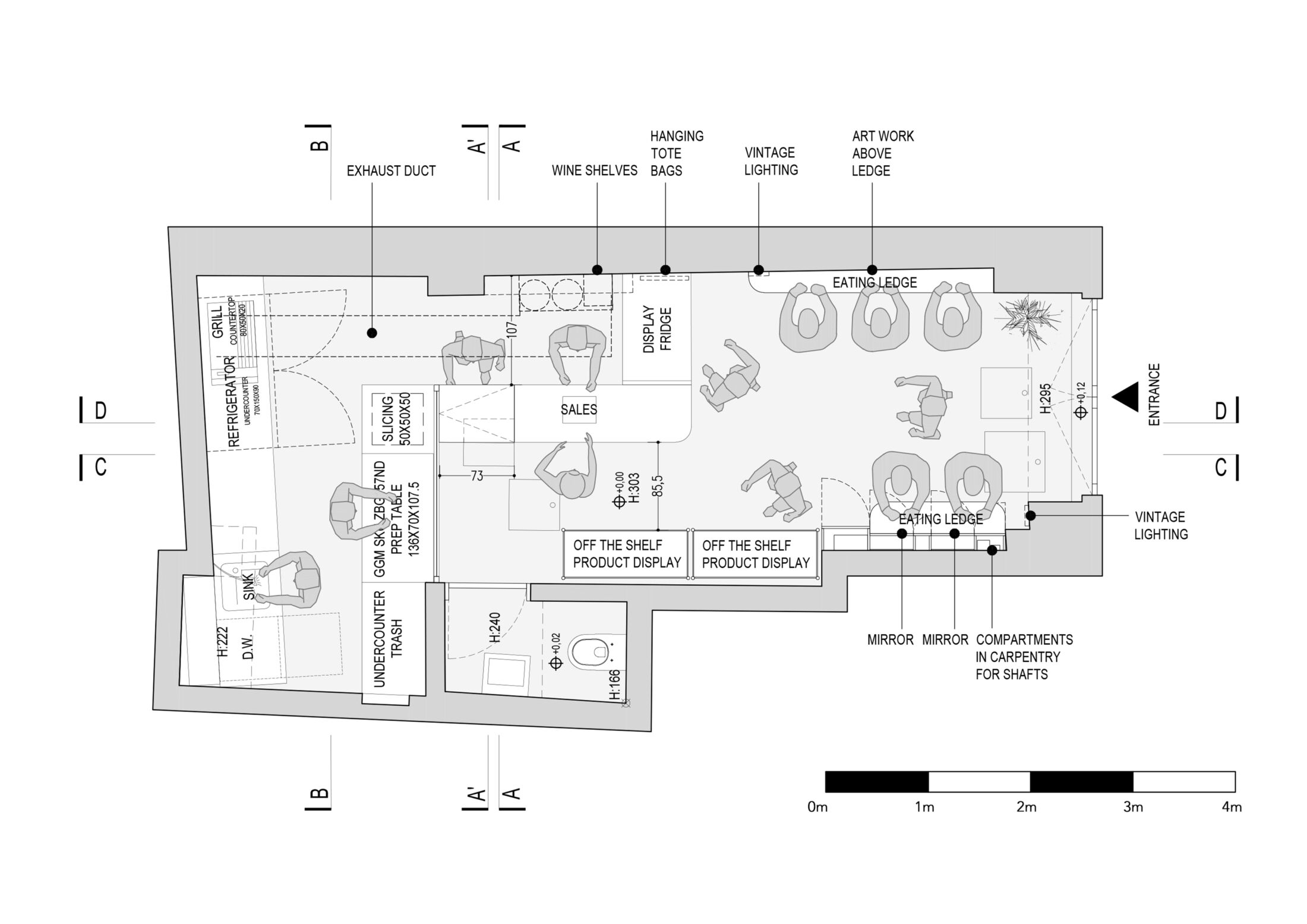
The interior uses simple and durable materials: stainless-steel counters, open wire shelving, terrazzo-inspired flooring, and softly textured walls that reflect daylight from the street. These elements create a bright and accessible setting that resonates with both Lisbon locals and the growing international community living in the city.
A continuous counter wraps the perimeter, offering casual seating and making efficient use of a small footprint , a direct response to the scale of Lisbon’s compact commercial spaces. The lighting combines globe pendants, linear tracks, and retro wall fixtures, while colourful illustrated posters and hand, drawn window graphics give the space its distinct, playful identity.
The open kitchen remains visible throughout the experience, highlighting the preparation of sandwiches, snacks, and daily specials. Clear product displays and honest materials reinforce the deli’s straightforward approach to food: simple, quick, and good.
BENI’s DELI blends Mediterranean softness with European deli culture to create a bright and friendly place in the heart of Lisbon, a spot designed for anyone who enjoys honest food, good atmosphere, and thoughtful design.










